Phoenix

Phoenix

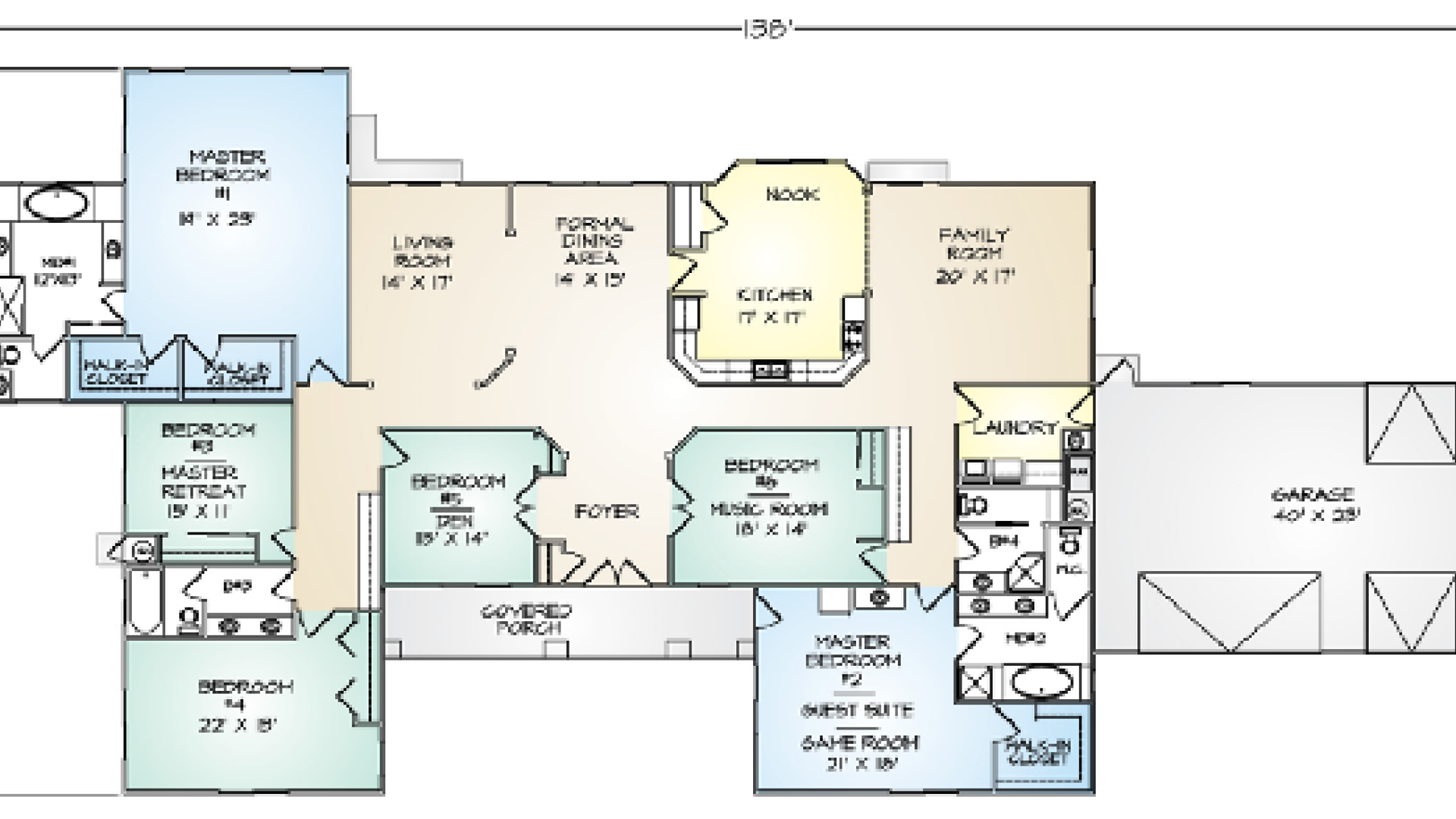
The Phoenix panelized kit home is spacious and flexible in design. A second master suite with private entry provides a retreat for guests or house members; it can also serve as a media, game, or hobby room. Any of the additional bedrooms can also be personalized as a den, study, music room, or master retreat. The expansive living and formal dining area provide an extensive view of the backyard through large windows. Volume and space are emphasized with ten-foot ceilings throughout the Phoenix. The large kitchen and nook open to the family room, as well as through a door to the formal dining area. The Phoenix has four full-size baths and two separate water heater closets. The three-car garage has an additional drive-through access door to the backyard and can easily be used as a hobby or work area with plenty of room left for storage.

FAQs:

About 7 to 10 days in typical conditions. Crews stand the numbered wall panels, set trusses, sheath the roof and walls, then wrap and secure openings so trades can start.

Panelized Kit Home Specs:

  • Total Living Space: 4,482 ft² (416 m²)
  • Bedrooms: 6
  • Bathrooms: 4
  • Garage: 3 Car
  • Ceiling Height: 10’
  • Covered Porch: 205 ft² (19 m²)
  • Home Plan Cost: Included (February 2026)
  • Building Kit Cost: $233,146 (February 2026)
  • Style: 1 Story
  • Minimum Payment: $8,200
Download Free Plan Review Set

Want More Information?

Invalid Input
Invalid Input
Invalid Input
Invalid Input
Invalid Input

Add to Cart

FAQs:

Prefab homes provide you with the benefits of improved quality control, better energy efficiency, faster build times, cost-effectiveness, and customization.

Contact Us

We will contact you and draw up requirements for the project and estimate.
Please enter your first name
Please enter your last name
Please enter a valid email address
Invalid Input